LEGACY LANDING
A 226-Unit Mixed Residential Subdivision
Legacy Landing is a thoughtfully planned 226-unit residential community strategically positioned at the I-95 Fellsmere Sebastian Highway interchange, one of the most critical growth gateways along Florida’s east coast. Located directly off County Road 512, the project sits at the convergence of Indian River, Brevard, and St. Lucie Counties, placing it squarely within the daily commute shed of the Space Coast and Treasure Coast’s fastest-growing employment centers.
The community is designed to directly address a well-documented housing shortage driven by accelerating job growth in aerospace, defense, healthcare, logistics, and professional services throughout the region. Major employers including SpaceX, Blue Origin, Piper Aircraft, and expanding defense and technology operations have created sustained demand for attainable, well-located housing that has significantly outpaced new residential supply in Indian River County and surrounding markets.
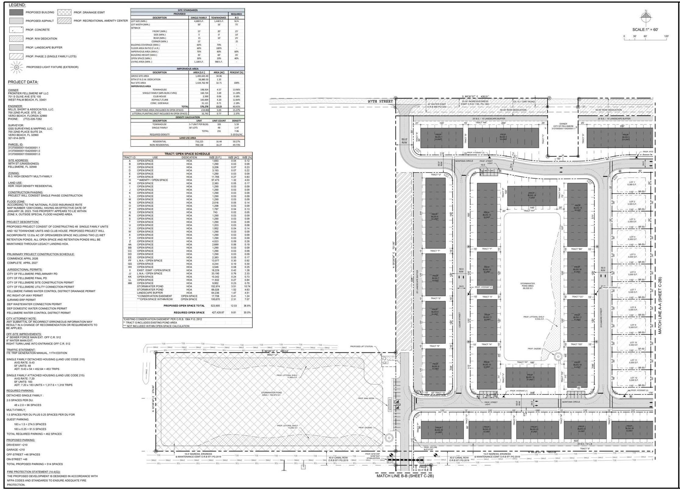
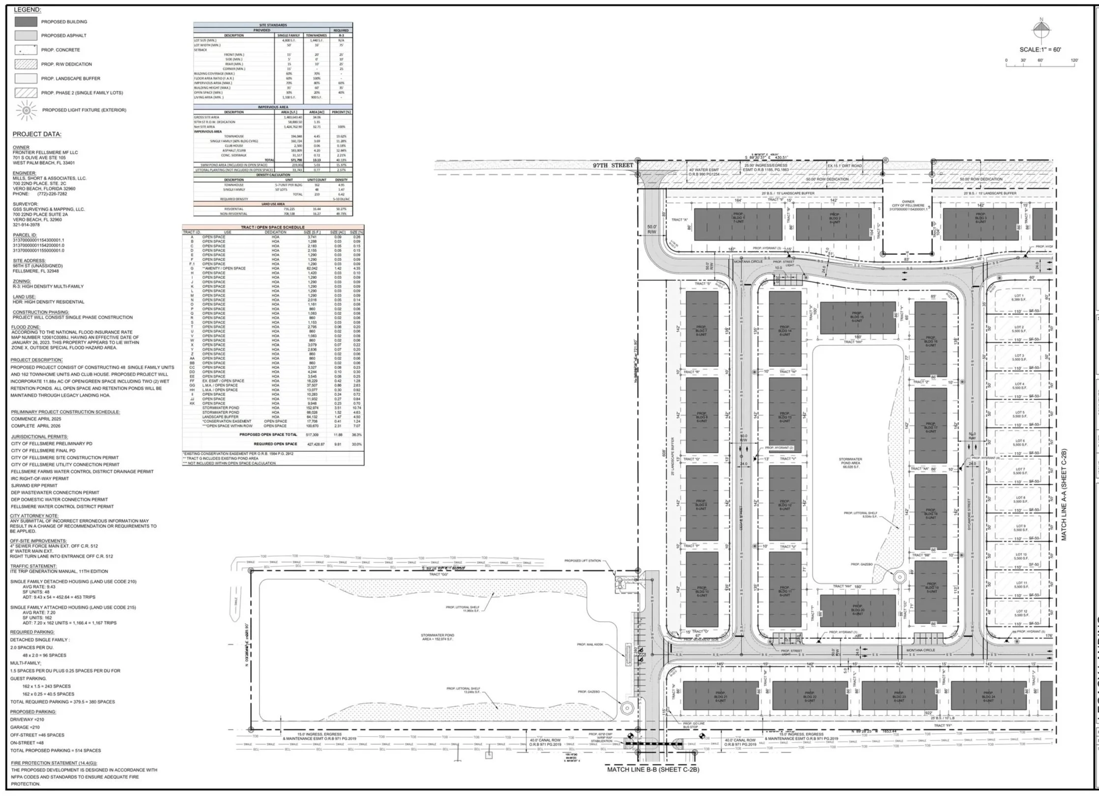
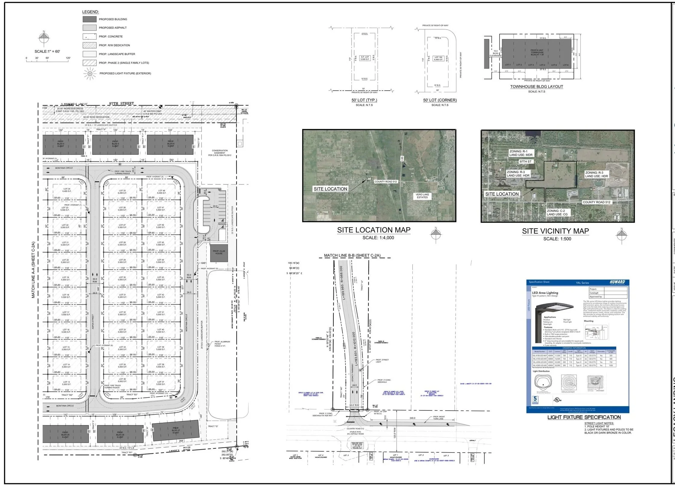
Legacy Landing will deliver a balanced and market-responsive product mix consisting of 178 townhomes on 20 foot lots and 48 single family homes on 50 foot wide lots. This configuration provides builders and developers with flexibility to serve multiple buyer profiles while supporting efficient absorption and strong sales velocity. Independent market studies confirm that Fellsmere functions as a value-oriented residential hub for households seeking modern housing with direct interstate access while being priced out of coastal submarkets to the East and larger metropolitan areas to the North and South.
Residents will benefit from exceptional regional connectivity, with immediate access to I-95, Highway 512, US-1, and A1A, placing Sebastian Inlet, the Indian River Lagoon, and the Atlantic Ocean within approximately fifteen minutes. Employment centers in Palm Bay, Melbourne, Vero Beach, Fort Pierce, and Port St. Lucie are all accessible within a practical commute, reinforcing the site’s role as a true workforce and family-oriented community.
Guided by a cohesive pattern book and master-plan vision, Legacy Landing emphasizes connectivity, resiliency, and open space, while preserving Fellsmere’s historic grid, rural character, and small town identity. Integrated green spaces, stormwater lakes, pedestrian-friendly streets, and a centrally-located clubhouse create a community environment that supports long-term livability and value creation.
Perfectly positioned to serve multiple high-growth markets simultaneously, Legacy Landing represents a rare opportunity to deliver scale housing in a supply-constrained corridor with durable demand drivers, exceptional access, and strong long-term fundamentals.
Engineered Master Plan Design
About Treasure Coast
Florida’s Treasure Coast is a dynamic and strategically positioned region defined by economic diversity, regional connectivity, and a high quality of life. Anchored by Indian River County and extending between the Space Coast to the North and South Florida’s major metropolitan markets to the South, the region functions as an integrated economic corridor rather than a collection of isolated communities.
Employment across the Treasure Coast is supported by a broad mix of industries, including education and healthcare, professional and business services, aerospace and defense, construction, logistics, and tourism-related sectors. Job growth is regional in nature, with residents often living in one community and working in another, supported by strong transportation infrastructure and reasonable commuting patterns. Inland communities such as Fellsmere play an increasingly important role in supporting this workforce by providing accessible residential options within reach of major employment centers.
The region’s long-term stability is reinforced by continued investment in infrastructure, education, and workforce development. Public schools, higher-education institutions, and vocational training programs contribute to a skilled labor pool while supporting families seeking long-term economic opportunity and community stability.
Beyond its economic fundamentals, the Treasure Coast offers a lifestyle that blends small-town character with access to natural amenities, outdoor recreation, and Florida’s Atlantic coastline. Thoughtful planning and a collaborative development environment have helped guide growth in a way that preserves community identity while accommodating future demand.
As the Treasure Coast continues to evolve, well-located residential development remains essential to supporting employment growth, regional competitiveness, and long-term sustainability. Communities like Fellsmere are increasingly recognized as integral components of this regional ecosystem, providing the balance of accessibility, livability, and opportunity that defines the next phase of growth along Florida’s East coast.
Market Demand
The Treasure Coast has emerged as one of the most compelling growth markets in the United States, driven by a convergence of demographic migration, corporate relocation, and sustained job creation across advanced industries. Since the pandemic, the region has experienced a significant influx of residents relocating from high-tax and high-cost states such as New York and California, drawn by Florida’s favorable tax environment, lifestyle advantages, and expanding employment base. This migration has reshaped housing demand across the spectrum, from luxury coastal residences to attainable workforce housing inland.
A major driver of this demand is the region’s proximity to the Space Coast and the rapid expansion of the aerospace and defense sector. The establishment of U.S. Space Command and Space Force operations in Florida, combined with large-scale private investment by companies such as SpaceX, Blue Origin, and leading defense contractors, has created thousands of high-paying, long-term jobs. These employers continue to attract engineers, technicians, support staff, and professional services workers who require housing within a reasonable commute to major employment hubs such as Melbourne, Palm Bay, and Cape Canaveral. As a result, housing demand is no longer seasonal or tourism-driven but anchored by permanent workforce growth.
Coastal markets including Vero Beach and Sebastian continue to see strong demand for luxury homes and high-end rental communities, fueled by affluent retirees, executives, and second-home buyers seeking exclusivity and lifestyle amenities. At the same time, inland markets such as Fellsmere and the broader Port St. Lucie area are experiencing growing pressure for well-located, market-rate housing that can support families, young professionals, and relocating employees priced out of coastal submarkets.
Multifamily housing demand has become particularly pronounced as employers expand operations and relocate personnel to the region. Apartment communities provide the flexibility and affordability required by a mobile workforce while offering an attractive alternative to homeownership amid rising costs and limited for-sale inventory. This dynamic has created a clear opportunity for developers to deliver thoughtfully designed multifamily communities that balance quality, accessibility, and long-term livability.
Taken together, demographic migration, multi-billion-dollar corporate investment, and sustained employment growth have positioned the Treasure Coast as a structurally strong housing market. Demand is being driven not by speculation but by real population growth, job creation, and lifestyle shifts, creating a durable foundation for new residential development that supports the region’s continued evolution.

